+382 63206230
Jovana Stojanovica F-1

Bar, ZANKOVICI
Na prodaju dio kuće ( prvi i drugi sprat) u izgradnji s pogledom na more, Sutomore, Bar. Stanovi se prodaju zajedno ili odvojeno!
Kuća je grubo napravljena sa svim instalacijama ( voda, struja i kanalizacija) i spremna da se ubrzo
završi od strane kupca.
Nedostaju podovi, keramika, sanitarije, unutrašnja vrata i krečenje.
To daje mogućnost potencijalnim kupcima da enterijer izvedu prema svojim željama.
Čitav objekat ima manji suteren, prizemlje, prvi i drugi sprat.
Krov objekta je đelimično ravan, prilagođen za postavljanje solarnih panela.
Na prodaju su dva nivoa kuće ( prvi i drugi sprat) i postoji mogućnost nadogradnje.
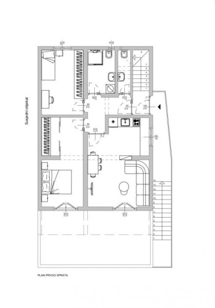
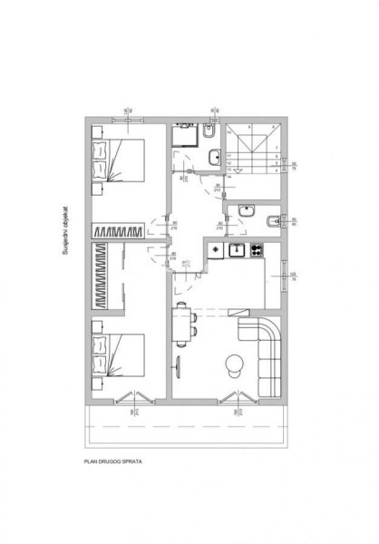
Na prvom i drugom spratu nalazi se po jedan dvosoban stan s pogledom na more i prirodu.
Svaki stan se sastoji od predsoblja, dnevnog boravka s kuhinjom, dvije spavaće sobe s garderoberom,
kupatila, toaleta i terase.
Stan na prvom spratu ima površinu od 98 m2, dok stan na drugom spratu ima površinu od
81 m2.
Objekat se nalazi u mirnom dijelu u naselju Zankovići, okružen prirodom.
Udaljen je od mora oko 2000m, a u blizini se nalazi i raskrsnica magistrale Podgorica- Petrovac-Bar.
Uz ovaj objekat je i pripadajuće zemljište od 84 m2.
Pripadajuće zemljište predviđeno je za parkiranje 3-5 automobila. Parking nije izgrađen.
Objekat je u postupku legalizacije. Urađen je geo-elaborat za cijeli objekat i predat nadležnoj službi opštine Bar. Objekat je u okviru Detaljnog Urbanistickog Plana
Prizemlje trenutno nije na prodaju, ali postoji mogucnost da buduci vlasnik prvog i drugog sprata
kupi i prizemlje u buducnosti
Cijena ukupno:
• I sprat + II sprat + Pripadajuće zemljište: 85. 000 €
Cijena pojedinačno:
• Stan I sprat: 36. 000 €
• Stan II sprat: 41. 000 €
• Pripadajuće zemljište: 16. 000 €
| Šifra oglasa | A1-352 |
| Tip | Kuća |
| Ukupna cijena | 85.000 € |
| Kvadratura | 180 m2 |
| Broj soba | 4 |
| Parking | Da |
| Namena | Prodaja |
| Sprat | |
| Broj etaža | 3 |
+382 63206230
+382 69 222 191
+382 63206230